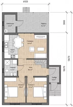
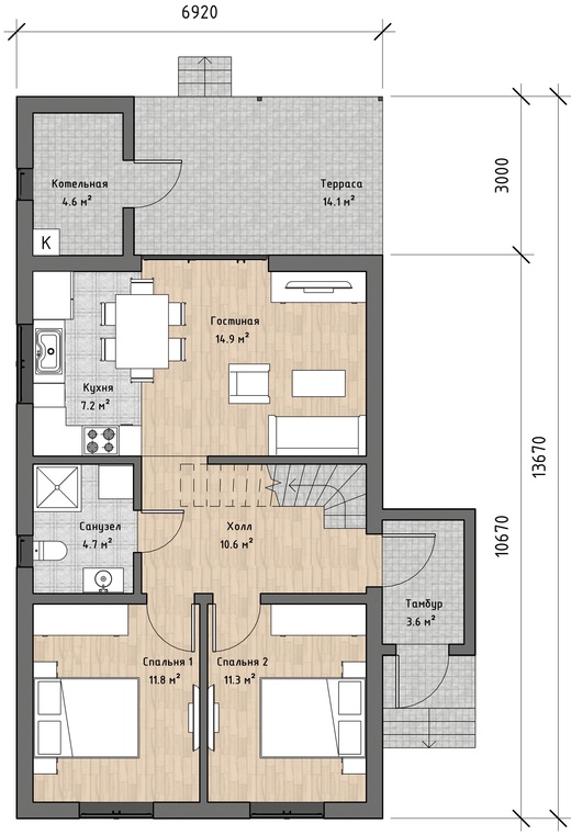
Продается дом, 100 кв.м., /2 эт
Обзор№ - 256
| Стоимость | 5 832 000 |
|---|---|
| Комнат в доме | 4 |
| Категория земли | ИЖС |
| Тип комнат | раздельные |
| Тип строения | Дом |
| Площадь, кв.м. | 100 |
| Площадь участка, сот | 4.9 |
| Этажность | 2 |
| Материал стен | Блочный |
Адрес
| Населенный пункт | село Юровка |
|---|---|
| Улица | улица Владимирмкая |
| Номер дома | 11 |
В избранное Купить дом в Анапе.
Продается дом в с. Юровка. Дом 100 кв.м., двухэтажный, отделка предчистовая ( стоимость дома с ремонтом 7.004.000), снаружи короед, цоколь утеплен, короед+покраска. В доме 4 спальни, кухня-гостиная, 2 санузла, котельная,терраса, крыльцо, ступени в плитке. Теплый пол по первому этажу. Во дворе бетонная отмостка, дорожка к дому отсыпана, забор по фасаду, калитка и ворота – евроштакет (одност/однор). Земельный участок 4,97 соток. Коммуникации:свет, вода, септик-выгребная яма 6 кубов.







