Продается дом, 100 кв.м., /2 эт
Обзор№ - 227
| Стоимость | 7 950 000 |
|---|---|
| Комнат в доме | 4 |
| Категория земли | ИЖС |
| Тип комнат | раздельные |
| Тип строения | Дом |
| Площадь, кв.м. | 100 |
| Площадь участка, сот | 4.5 |
| Этажность | 2 |
| Материал стен | Блочный |
Адрес
| Населенный пункт | станица Гостагаевская |
|---|---|
| Улица | улица Северная |
| Номер дома | 22д |
В избранное Дома недорого в Анапе.
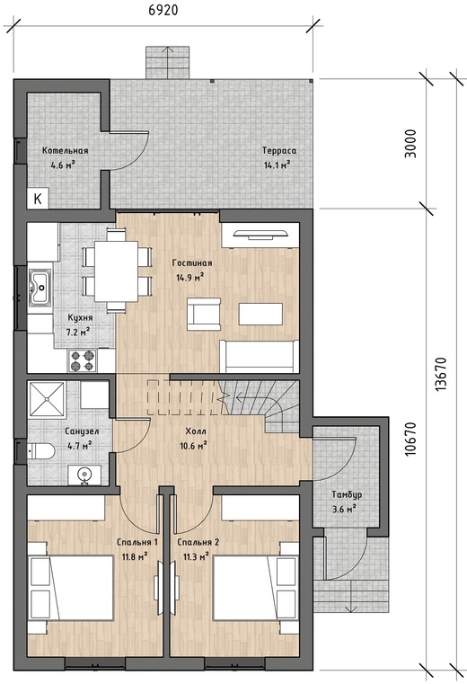
Продается дом на стадии строительства в ст. Гостагаевской. Дом100 кв.м., двухэтажный, с ремонтом (фото примерного ремонта по завершению строительства), снаружи короед, цоколь: утепление + короед + покраска. В доме 4 спальни, кухня-гостиная, 2 санузла, котельная. Терраса, крыльцо, ступени в плитке. Теплый пол по всему дому. Территория: тротуарная плитка, отмостка, дорожка к дому, машиноместо. Забор по фасаду, калитка и ворота – евроштакет. Земельный участок 4,5 сотки. Коммуникации: свет, вода, биосептик.

















